
上海2022年3月30日 /新闻稿网 - Xinwengao.com/ — 业界领先的多元化专业服务和投资管理公司高力国际(纳斯达克和多伦多证券交易所代码:CIGI)凭借对项目与市场的专业理解以及办公楼服务团队丰富的操盘经验,赢得国际化商办资产综合发展及运营商COOC中海商务委任,为北京中海地产广场项目提供首席办公楼租赁代理服务。
中海实力打造,南部商务标杆
作为备受瞩目的中海系写字楼之一,北京中海地产广场是世界500强成员企业中海地产倾力打造的甲级写字楼,项目由中海全资持有,是北京南站区域稀缺的独栋甲级写字楼。
坐拥龙脉,临河而建,品质领先
龙是中华传统文化的图腾,北京的龙脉是北京城东西建筑对称的中轴线,聚集了北京古代建筑的精髓。故宫、天安门等国家级古建均位于龙脉之上,也坐落着鸟巢、水立方等一众国家级建筑,同时还有诸如亚洲金融大厦、国家会议中心、中海国际中心等甲级写字楼。
中海地产广场位于北京城永定门外——北京中轴线起点、南中轴线区域,永定河穿流而过。地处南二环优越区位,向东连接CBD,向西毗邻金融街,向北紧接中央行政区,处于多商圈交汇核心位置,市政、轨道、城际交通发达。
距北京南站仅800米,依托新北京南站快轨枢纽的板块优势,辐射京津冀、环渤海经济圈城际商务,促进"首都经济圈"新核心的形成。
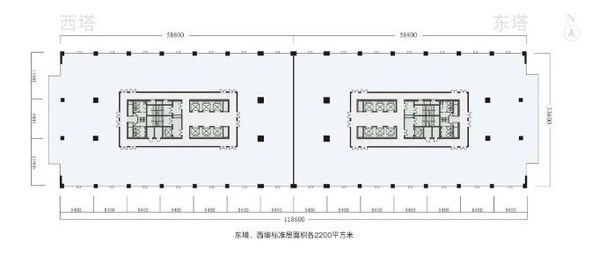
南二环绝佳展示面,超高使用率自由分割
紧接南二环路,面向二环可放置入驻企业定制醒目LOGO,尽收二环高曝光流量。环廊柱式空间,理想进深,全景采光。一览CBD、天安门、金融街、西山景色。
东塔、西塔两侧标准层面积各2200平方米,可分可合,78%-82%超高使用率,宽敞明亮提升企业办公舒适度。楼宇层高3.87米,净高2.8米,8.4米柱距,适合企业总部根据需求自由分割。
地铁直达,高效便捷
处于4号线、14号线、8号线三条地铁轨道线交汇处,14号线陶然桥地铁站预计年内开通,距离项目仅50米。
此外,项目贯通34条公交路网,提供早晚地铁站通勤班车,最大程度满足楼内员工出行需求。
完善配套,舒适办公
全面物业管家式服务,469席停车位,停车场自动化管理系统,由中海物业管理系统全面支持。东西双塔首层共3600平方米商务配套,配备有员工餐厅等,助力舒适办公,充分满足企业所需。
高力国际华北区副董事总经理陈难表示,本次强强联手是中海商务与高力国际合作的开端,也是未来进一步加强双方紧密联系的起点。高力国际将携手中海商务,基于双方高度一致的理念,依托自身国际化综合平台的优势和创新的品牌资源,为中海地产广场制定快速去化策略,进一步强化升级北京南部商务标杆。
COOC中海商务(China Overseas Office Capital)作为中海商业核心持有商办资产与旗舰业务品牌,是行业内首个商办资产统领品牌旗舰,也是国际化商办资产综合发展及运营商。规划开发及已运营甲级写字楼达80余座,在营面积近400万平方米,布局伦敦、香港、北京、上海、成都等全球26个经济活跃城市,已服务超过100家世界500强及行业领军企业。
中海商务集合旗下中海中心、中海国际中心、中海财富中心、中海广场和中海大厦五大甲级写字楼产品线,拥有完整、集约、多元的品牌矩阵,致力于打造楼宇经济为核心的商务生态闭环,助力区域经济升级转型,激发城市经济活力,共创美好生活。